無料査定はこちら 掲載物件はこちら
【売戸建】中古戸建
熊本県荒尾市
  • サブ画像1
  • サブ画像2
  • サブ画像3
  • サブ画像4
  • サブ画像5
  • サブ画像6
  • サブ画像7
  • サブ画像8
  • サブ画像9
  • サブ画像10
  • サブ画像11
  • サブ画像12
  • サブ画像13

ご相談・お問い合わせはこちら

お電話095-842-5666 この物件について問い合わせる

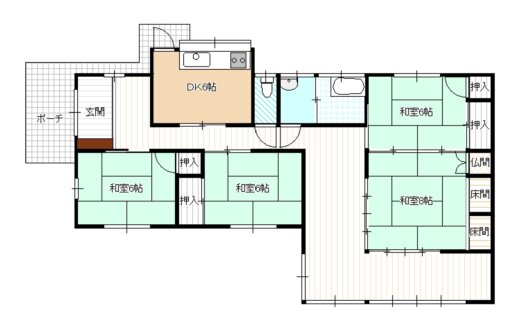
物件概要

価格
460万円
タイプ
【売戸建】中古戸建 / 1階建
間取り
4DK
築年数
1980/1
敷地面積
304.07㎡
所在地
熊本県 本井手
交通
バス(助丸 徒歩11分)
YouTube
-
前のページに戻る

物件詳細

建物名(物件名)
非公開
部屋番号/区画番号
非公開
価格
460万円
敷金
-
管理費
-
修繕積立費
-
駐車場
空有
借地料
-
敷地面積
304.07㎡
土地面積計測方式
公簿
土地権利
所有権
地目
宅地
地勢
平坦
セットバック
-
接道1
北西側 幅員3mの公道に11m接する
接道2
-
建物構造
木造 地上1階
築年月
1980/1
専有面積
-
建物面積計測方式
壁芯
延床面積
109.20㎡
バルコニー面積
-
都市計画
市街化区域
用途地域
第一種住居地域
建ぺい率
60%
容積率
160%
表面利回り
-
現行利回り
-
通学校区
平井小学校
荒尾第三中学校
現況
空家
引渡/入居時期
相談
取引態様
専任
物件公開日
2026年3月28日
次回更新予定日
2026年4月28日

設備・条件

その他: 純和風住宅

■周辺施設(Googleマップより計測)
「平井小学校」まで1500m
「荒尾第三中学校」まで1600m
「本井手みのり保育園」まで1200m
「グリーンランド」まで2800m
「マミーズ緑ヶ丘店」まで2500m
「ナフコ荒尾店」まで2000m

■お支払例(購入時諸経費別途)
借入額460万円、金利1%、10年払い
月々・・・・40,297円
ボーナス・・なし
※購入時の諸経費やリフォーム代金も含めて住宅ローン可

前のページに戻る

ご質問・ご相談、
お気軽にお問い合わせください

無料LINEで査定する

お電話でのお問い合わせはこちら

095-842-5666

営業時間 9:00-18:00 / 定休日 日・祝日

Fudousan Plugin Ver.6.8.0