売買物件を探す
【売マンション】中古マンション
便利な立地・快適な環境(新築・眺望・畑)
アンサンブルビル
物件概要
- 価格
- 4.9万円
- タイプ
- 【売マンション】中古マンション / 5階建
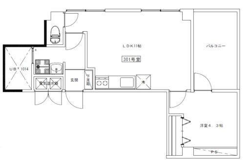
- 間取り
- 1LDK
- 築年数
- 1978/10
- 専有面積
- -
- 所在地
- 長崎県 長崎市 中園町
- 交通
- 交通情報なし
- YouTube
- -
物件詳細
- 建物名(物件名)
- 非公開
- 部屋番号/区画番号
- 非公開
- 価格
- 4.9万円
- 敷金
- 58,000円
- 管理費
- -
- 修繕積立費
- -
- 駐車場
- 空無
- 借地料
- -
- 敷地面積
- -
- 土地面積計測方式
- -
- 土地権利
- -
- 地目
- -
- 地勢
- -
- セットバック
- -
- 接道1
- -
- 接道2
- -
- 建物構造
- RC 地上5階
- 築年月
- 1978/10
- 専有面積
- -
- 建物面積計測方式
- 内法
- 延床面積
- 45.38㎡
- バルコニー面積
- -
- 都市計画
- -
- 用途地域
- -
- 建ぺい率
- -%
- 容積率
- -%
- 表面利回り
- -
- 現行利回り
- -
- 通学校区
-
西北小学校
岩屋中学校 - 現況
- 空家
- 引渡/入居時期
- 相談
- 取引態様
- 専任
- 物件公開日
- 2026年3月28日
- 次回更新予定日
- 2026年4月28日
■周辺施設(Googleマップより計測)
「ジョイフルサン住吉店」まで徒歩34m
「A-プライス長崎住吉店」まで徒歩236m
「チトセピア」まで徒歩363m
「十八親和銀行住吉中央支店」まで徒歩178m
「長崎中園郵便局」まで徒歩40m
「長崎市役所西浦上地域センター」まで徒歩470m